Los proyectos de ingeniería estructural exigen precisión y eficiencia para tener éxito a tiempo, dentro del presupuesto y según las especificaciones, por lo que es imperativo que los ingenieros estructurales cuenten con el conjunto de herramientas adecuado. Entre estos componentes críticos, los detalles de las barras de refuerzo son cruciales para garantizar la resistencia, la durabilidad y la integridad de una estructura. Entra en escena Probar 2D por BricsCAD, desarrollado por Prokon Software Limited. Probar 2D es un software de detallado de barras de refuerzo que se integra con BricsCAD para agilizar el proceso, lo que permite la creación y gestión rápidas de dibujos de barras de refuerzo en 2D. Pero, ¿qué hace que la combinación de Probar 2D y BricsCAD se destaque de otras herramientas CAD de ingeniería estructural?
Detallado eficiente de barras de refuerzo: integración sin esfuerzo con BricsCAD®
Probar 2D se integra perfectamente con BricsCAD, lo que garantiza un entorno de trabajo familiar para los usuarios, completo con una integración perfecta del flujo de trabajo con otras herramientas PROKON, lo que hace que la transición del dibujo al detallado de barras de refuerzo sea más suave que nunca.
Diseño detallado de barras de refuerzo: detalles de barras de refuerzo simplificados
Probar 2D transforma la forma en que se aborda el detallado de barras de refuerzo al ofrecer un amplio soporte para varias formas y configuraciones de barras de refuerzo. Esta flexibilidad se adapta a las necesidades únicas de cada proyecto, desde simples edificios residenciales hasta complejas instalaciones industriales.
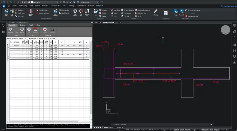
Programación eficiente
La generación automatizada de programas de doblado de barras a partir de dibujos detallados es quizás una de las características más impactantes de Probar 2D. Esta automatización garantiza tablas precisas y consistentes que cumplen con los estándares de la industria, reduciendo considerablemente el trabajo manual y el margen de error.
Personalización sin precedentes
No hay dos proyectos iguales, por lo que Probar 2D ofrece opciones de personalización completas. Los usuarios pueden adaptar los detalles de las barras de refuerzo para cumplir con los requisitos específicos del proyecto, ajustando las formas, dimensiones y propiedades de las barras de refuerzo a sus necesidades precisas.
Automatización y productividad
Las capacidades de automatización de Probar 2D mejoran significativamente la productividad y minimizan los posibles errores, liberando a los ingenieros y detallistas para que se concentren en los aspectos más críticos de sus proyectos.
Garantice el cumplimiento
Navegar por las complejidades de los estándares locales e internacionales de detallado de barras de refuerzo puede ser desalentador. Probar 2D está diseñado para garantizar el cumplimiento, haciendo que los proyectos estén listos para su ejecución en varias regiones del mundo.
Probar 2D es un recurso esencial para los profesionales de las industrias de ingeniería estructural y construcción. Desde profesionales experimentados hasta empresas que buscan aumentar su productividad y reducir los tiempos de redacción, Probar 2D y BricsCAD es una combinación estelar.
Apúntese y reciba una Newsletter mensual con los artículos más destacados
Déjenos su correo y le mantendremos al día sobre las actualizaciones, webinars y las últimas novedades de DGS Proyectos y BricsCAD.



